Dunaszeg,
Premium Wellness Spiegelglas Sauna

loading
Premium Wellness Spiegelsauna
  • Premium Wellness Spiegelsauna
  • Outdoor Sauna
  • moder spiegelglass szauna
  • Spiegelglas Sauna
  • Sauna mit Pergola
  • Panorama Sauna
  • Winterliche Sauna
  • Sauna Abendstimmung
  • Mirror Lounge
  • Tropische Entspannung
  • Ruhe am See
  • Garten Wellness sauna
  • Alpine Ruhe
  • Mirror Zen
  • Sauna Wellnesshaus
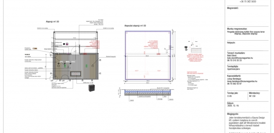
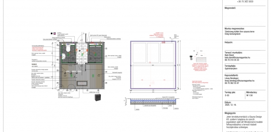
  • Wellnesshaus Grundriss

Außensauna, in der Glas keine Grenze, sondern Raum ist


Wärmegedämmte Glasarchitektur. Planung von ganzjährig nutzbaren Saunahäusern


Bei der Planung der Spiegelglas Sauna ging es uns nicht darum, einen aktuellen Trend zu formulieren, sondern eine zeitlose Lösung zu schaffen, die auch über Generationen hinweg Bestand hat. Ausgangspunkt war eine bewusste Fragestellung: Wie kann Saunieren zu einem natürlichen Bestandteil des Alltags werden nicht zu einem Anlass, sondern zu einer dauerhaften Qualität des Lebens?

Das Konzept der Spiegelsauna formte sich von Beginn an als einheitliches System, in dem architektonische Erscheinung, Funktion und Nutzungserlebnis zu einer einzigen, langfristigen Entscheidung zusammenfinden.

Außensauna, in der Glas keine Grenze, sondern Raum ist


Eine der wichtigsten Innovationen der Design Sauna liegt in der Art und Weise, wie sie sich ihrer Umgebung anpasst. Tagsüber reflektieren die Spiegelflächen die Landschaft, sodass das Erlebnis der Panoramasauna selbstverständlich Teil der gebauten Umgebung bleibt. In den Abendstunden verändert sich der Charakter des Raumes: Warmes Innenlicht und eine reduzierte Materialwahl schaffen eine geschützte, ruhige Atmosphäre. Dieser innovative Ansatz zielt nicht auf reine Wirkung ab, sondern darauf, dass das moderne Saunahaus langfristig ausgewogen und nachhaltig funktioniert.

Sauna und Glasarchitektur in zeitloser Form


Die Innenraumgestaltung der Premium Außensauna folgt konsequent den Prinzipien von Klarheit und Proportion. Natürliche Holzmaterialien, eine gleichmäßige Wärmeverteilung und fein integrierte Beleuchtung sorgen dafür, dass Saunieren nicht zur Leistung, sondern zum Ritual wird.
Die ganzjährig nutzbare Sauna bietet zu jeder Jahreszeit ein gleichbleibend hochwertiges Erlebnis so wird Luxus Wellness nicht zum gelegentlichen Ereignis, sondern zum selbstverständlichen Teil des Alltags. Dieser Raum folgt keinen Trends und bewahrt gerade dadurch seinen langfristigen Wert.

Individuelle Premium Wellness Saunahäuser im perfekten Gleichgewicht


Jedes von uns geplante individuelle Saunahaus entsteht aus einer eigenständigen gestalterischen Idee.
Das Outdoor Wellnesshaus ist kein Serienprodukt, sondern ein maßgeschneidertes, innovatives Konzept, in dem technische Zuverlässigkeit und emotionale Qualität im Gleichgewicht stehen. In der Denkweise von iSauna Design ist die Mirror Sauna nicht nur ein ästhetisches Element, sondern eine bewusste Investition in Lebensqualität. Ein Premium Wellnessraum, der nicht nur genutzt, sondern über Generationen hinweg weitergegeben werden kann.

 

Wahrer Luxus verlangt keine Aufmerksamkeit.

Entdecken Sie, wie die Einheit aus wärmegedämmter Glasarchitektur und Sauna zu einem zeitlosen Raum wird.

Haben Sie individuelle Sauna-Ideen?

Schicken Sie uns Ihre Kommentare, Anregungen, damit wir unsere Saunen und Saunahäuser zu Ihren Berdürfnissen anpassen können!

■ Bitte rufen Sie uns an, oder schreiben Sie uns eine E-Mail! Unser Mitarbeiter wird sich umgehend mit Ihnen in Verbindung setzen!

■ International Verkauf und Herstellung

Lévay Bendegúz

 Bendegúz Lévay
 International Sales Manager - HU/EN/DE
 Phone: +36 70 362 5597
 E-mail: info@szaunagyartas.hu

Online Sauna Aufmaß

Kaufen Sie DIREKT vom Sauna Hersteller, in exclusiver Qualität, zum besten Preis-Leistungsverhältnis!

■ Schreiben Sie bitte eine Nachricht, unsere Mitarbeiter helfen Ihnen gerne weiter!
Absenden

Glassauna vom iSauna Hersteller

Individuelle Design Cube Saunen vom Sauna Hersteller

Wellness Aussen Sauna

Individuelle exclusive Wellness Aussen Sauna in Ihren Garten

Sauna Wellness für Zuhause

Premium Qualität mit internationaler TÜV Zertifizierung

Innenarchitektur Wohnungseinrichtung

Innenarchitektonische Planung und Ausführung in einer Hand.

de hu en at sk cz