Hallstatt,
Wellness-Erlebnis zu Hause

loading
Wellness zuhause
  • Wellness zuhause
  • Private Wellness
  • Wellness zu hause
  • Finnisch sauna zu hause
  • 3D Visualisierung
  • Architekturvisualisierung
  • Home wellness
  • Komplex Wellnessbereich

Wellness zuhause – familiäres wellness Erlebnis

Wer würde nicht gern nach einem anstrengenden Tag in seiner eigenen Sauna oder wellness entspannen?

Eine bessere Entspannung ist schwer zu finden! Man muss nicht reisen, kein Schlange stehen, niemand kann unsere private Ruhe stören.

In der Regel das ist die Hauptvorteil, weshalb wir von unseren Kunden kontaktiert werden.

In diesem Projekt haben wir einen home wellness Bereich ausgeführt. Unser Kunde kam auf uns zu mit dem Bedarf für eine kombinierte Sauna. Er und seine Frau haben und in unserem Manufaktur besichtigt, damit wir die Details übersprechen können.

Während unseres Gesprächs ist der Bedarf für einem komplex Wellnessbereich aufgetaucht. Der Ort wurde gegeben. Ein bestehendes Gebäude in ihrem Wochenendhaus wurde gerade renoviert.

Das Gebäude bietet ein wunderschönes Panorama an, was perfekt für der Errichtung des einzigartiges Homewellness ist.

Unser Design Team hat mit der Arbeit angefangen.  Zusammen mit unseren Kunden haben wir den Stil des Wellness festgelegt: rustikal und klassisch mit modernen Zeichen. Mit dieser Kombination und der Verwendung von natürliches Holz wir könnten einen warmen, naturnahen Effekt erschaffen, genau was unseren Kunden wollten.
Ein Home wellness, welches alle Bedürfnisse befriedigt, wurde stufenweise entworfen.

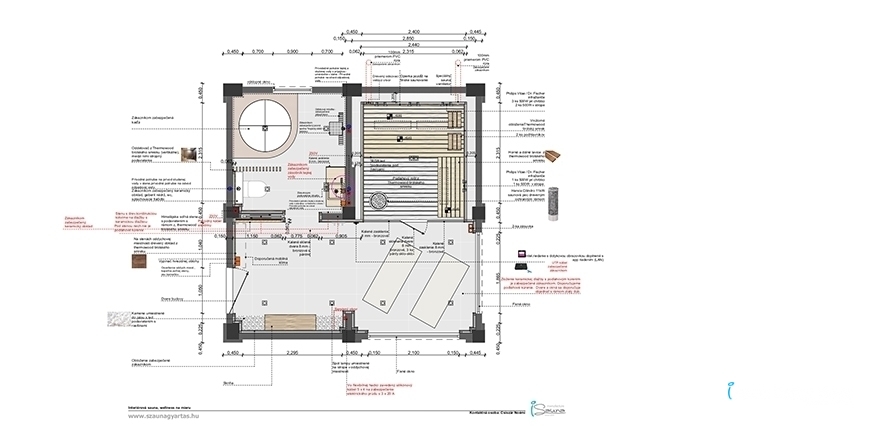
Nach der Planung kam die qualitative Realisierung. Das Homewellness wurde auf drei Teile aufgeteilt. Innerhalb des Wellnessbereiches befindet sich eine exklusive kombinierte Sauna, Badezimmer mit Duschkabine und WC. Eine design Trennwand mit LED Beleuchtung  und einen Ruhebereich mit Blick auf dem Panoramawurde auch erschaffen.

Das Badezimmer und der Ruhebereich wurden mit einer speziellen Schiebetür getrennt. Auf der Seite des Badezimmers besteht einen Himalaya Salzwand System und auf der anderen Seite einen Regalsystem.

Die Himalaya Salzwand, die LED Beleuchtung und der Sternhimmel auf dem Plafond sorgen für dem stimmungsvollen  Atmosphäre des privaten Wellness.

Die Sauna, die Wände und die Plafonds sind mit erstklassigen Thermowood Profilholz aus tirolischer Tanne bedeckt. Diese versichert die warme und rustikale Stimmung der Räume. In den Ruhebereich befindet sich einen Schrank. Auf beide Seiten wurden Boxen mit LED Beleuchtung aufgestellt.

Danke unseres ausgezeichneten und vorbereiteten Tischler-Teams, die Ausführung des privaten Wellness war reibungslos. 

Die Übergabe fand eine Woche vor Weihnachten statt. Unseren Kunden waren sehr froh, dass sie die Feiertage vertraulich mit ihrer Familie, in ihren eigenen wellness verbringen konnten.

Haben Sie individuelle Sauna-Ideen?

Schicken Sie uns Ihre Kommentare, Anregungen, damit wir unsere Saunen und Saunahäuser zu Ihren Berdürfnissen anpassen können!

■ Bitte rufen Sie uns an, oder schreiben Sie uns eine E-Mail! Unser Mitarbeiter wird sich umgehend mit Ihnen in Verbindung setzen!

■ International Verkauf und Herstellung

Lévay Bendegúz

 Bendegúz Lévay
 International Sales Manager - HU/EN/DE
 Phone: +36 70 362 5597
 E-mail: info@szaunagyartas.hu

Online Sauna Aufmaß

Kaufen Sie DIREKT vom Sauna Hersteller, in exclusiver Qualität, zum besten Preis-Leistungsverhältnis!

■ Schreiben Sie bitte eine Nachricht, unsere Mitarbeiter helfen Ihnen gerne weiter!
Absenden

Glassauna vom iSauna Hersteller

Individuelle Design Cube Saunen vom Sauna Hersteller

Wellness Aussen Sauna

Individuelle exclusive Wellness Aussen Sauna in Ihren Garten

Sauna Wellness für Zuhause

Premium Qualität mit internationaler TÜV Zertifizierung

Innenarchitektur Wohnungseinrichtung

Innenarchitektonische Planung und Ausführung in einer Hand.

de hu en at sk cz