Frankfurt,
Eigenes Wellness zu Hause

loading
Wellness zu Hause
  • Wellness zu Hause
  • Wellness sauna
  • Private wellness
  • Einzigartiges wellness
  • Himalayan salz
  • Finnisch sauna
  • Wellness-Planung
  • Wellness Planung, Ausführung

Eigenes wellness home vom iSauna Design Team!

Haben Sie bereits einen wellness Bereich zu Hause? Oder sammeln Sie nur Ideen für die Verwirklichung?

Völlig einzigartige Verwirklichung? Eine Realisierung, die maßgeschnitten ist und Ihre Persönlichkeit widerspiegelt?

Ich habe gute Nachrichten für Sie! Sie müssen nicht weiter suchen! Sie sind am besten Platz, um Ihren eigenen wellness Projekt verwirklichen. Zwischen die Referenzen von iSauna Design Kft. Können Sie Ihren eigenen Stil finden.
Sei es klassisch, modern oder minimalistisch bei uns werden Träume wahr!

Unser Designteam ist zielbewusst um die neuesten Trends und personalisierte Lösungen zu finden. Klingt gut oder?
Wenn Sie sich mit unserer Philosophie identifizieren können, dann alles was noch zu tun ist: uns kontaktieren, damit wir Ihren home wellness Bereich zusammen realisieren können.

Hier ist eine Realisierung, welche fing genauso an. Nun kann unsere Kunde tagtäglich den Komfort des home wellness nach ihren Bedürfnissen genießen!

In diesem Projekt hat uns die Kunde nicht persönlich kontaktiert. Aus einem einfachen Grund: Distanz. Erstens haben wir Kontakt per e-mail aufgenommen. Danach hatten wir ein Paar Videotelefonanrufe. Danach unsere Kunde unsere personalisierte Lösungen und Referenzen gesehen hat, hat sie unsere fachliche Kompetenz vertraut. Auf Grund der erfolgreichen Kommunikation könnten wir die Vorstellungen und Bedürfnisse unserer Kunde komplett verstanden.

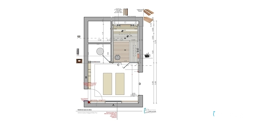
Wir haben herausgefunden, dass sie einen großen Wert auf ihren japanischen Garten liegt. Wir wollten diese Fact ausnutzen bei der Realisierung des home wellness Bereich. Durch das Panoramaglas haben wir einen direkten Aufblick auf dem geschätzten Garten!

In privaten wellness Bereich hat eine Duschkabine, eine kombinierte Sauna und einen „Ruhebereich“ Platz gefunden. Aus unseren Holzmaterialien haben wir die erstklassige rote Zeder Täfelung gewählt.

Die Sauna, der Plafond des Ruhebereiches und die Wanddesign sind auch aus diesem Material gemacht. Nach dem wir die Fotos sehen können wir zugeben: Die Kunde hat richtig gewählt!

Haben Sie individuelle Sauna-Ideen?

Schicken Sie uns Ihre Kommentare, Anregungen, damit wir unsere Saunen und Saunahäuser zu Ihren Berdürfnissen anpassen können!

■ Bitte rufen Sie uns an, oder schreiben Sie uns eine E-Mail! Unser Mitarbeiter wird sich umgehend mit Ihnen in Verbindung setzen!

■ International Verkauf und Herstellung

Lévay Bendegúz

 Bendegúz Lévay
 International Sales Manager - HU/EN/DE
 Phone: +36 70 362 5597
 E-mail: info@szaunagyartas.hu

Online Sauna Aufmaß

Kaufen Sie DIREKT vom Sauna Hersteller, in exclusiver Qualität, zum besten Preis-Leistungsverhältnis!

■ Schreiben Sie bitte eine Nachricht, unsere Mitarbeiter helfen Ihnen gerne weiter!
Absenden

Glassauna vom iSauna Hersteller

Individuelle Design Cube Saunen vom Sauna Hersteller

Wellness Aussen Sauna

Individuelle exclusive Wellness Aussen Sauna in Ihren Garten

Sauna Wellness für Zuhause

Premium Qualität mit internationaler TÜV Zertifizierung

Innenarchitektur Wohnungseinrichtung

Innenarchitektonische Planung und Ausführung in einer Hand.

de hu en at sk cz